Aktuálně můžete v lokalitě Liberec vybírat z nabídky 42 domů.
Přehled nemovitostí: prodej domy > vily Zpět na přehled nabídek

Prodej, Vila, Liberec

417 m2

481 m2

G - Mimořádně nehospodárná

0858

Cena: 20990000 CZK / objekt

Poslat dotaz k nabídce
Zásady používání osobních údajů

Prodejce

Makléř: Mgr. Martin Mrugala

Telefon: 777 777 ...

E-mail: martin. ...

Zobrazit celý kontakt

Nemovitost nabízí

AZ Real Servis

Ruprechtická 389/5, 460 01 Liberec

www.azrealservis.cz

Zobrazit kontakt na RK

Zobrazit všechny nabídky RK

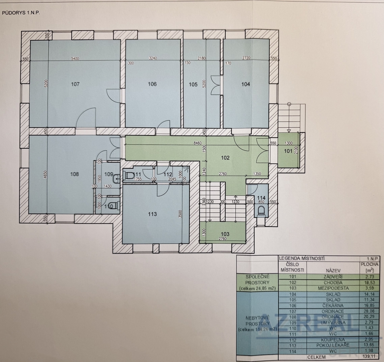
Exkluzivně nabízíme k prodeji historickou vilu v katastrálním území Liberec - Staré Město, ulice Ruprechtická. Vila byla přestavěna do dnešní podoby v roce 1928 pro továrníka Eduarda Hasse a v roce 1948 byla spolu s továrnou znárodněna a nyní vedena jako „průmyslový objekt“. Nemovitost se nachází v atraktivní lokalitě širšího centra města s výbornou dopravní dostupností a možností parkování před domem nebo v přilehlé slepé ulici. Až do privatizace v roce 1993 vila sloužila v přízemí jako ordinace závodního lékaře a v prvním patře a podkroví jako ubytování zaměstnanců. Od roku 2003 probíhala postupná rekonstrukce s důrazem na zachování původního historického vzhledu objektu. Byla provedena výměna oken, nová střecha včetně klempířských prvků a odborná rekonstrukce fasády. Nemovitost je v dobrém technickém stavu. V současné době je v přízemí nadále provozována ordinace praktického lékaře. V prvním patře se nachází čtyři bytové jednotky 1+kk a prostor vhodný pro vybudování další bytové jednotky 1+kk o výměře cca 20 m2. V podkroví je umístěn jeden byt 1+kk a dva byty 2+kk. Vytápění objektu je zajištěno čtyřmi plynovými kotli. Vnitřní prostory byly modernizovány dle současných standardů bydlení. Objekt je částečně podsklepený, sklepní prostory jsou suché, větrané a plně využitelné. Za domem se nachází menší pozemek s možností parkování. Nemovitost představuje bezpečnou a stabilní investici s atraktivním konzervativním ročním výnosem cca 900 000 až 1 000 000 Kč dle míry obsazenosti. Díky své poloze a charakteru je vhodná také jako reprezentativní sídlo firmy, případně kombinace bydlení, komerčních služeb a kanceláří. Kompletní půdorysy s výměrami jsou k dispozici mezi fotografiemi.



Nahoru