Makléř: Biasiol Klára
Telefon: 773 905 ...
E-mail: biasiol ...
Zobrazit celý kontaktTelefon: 773 905 050
E-mail: biasiol@lbcreality.cz
Nemovitost nabízí
LBC reality s.r.o.
Jánská 864/4, 460 01 Liberec 1
Zobrazit kontakt na RK
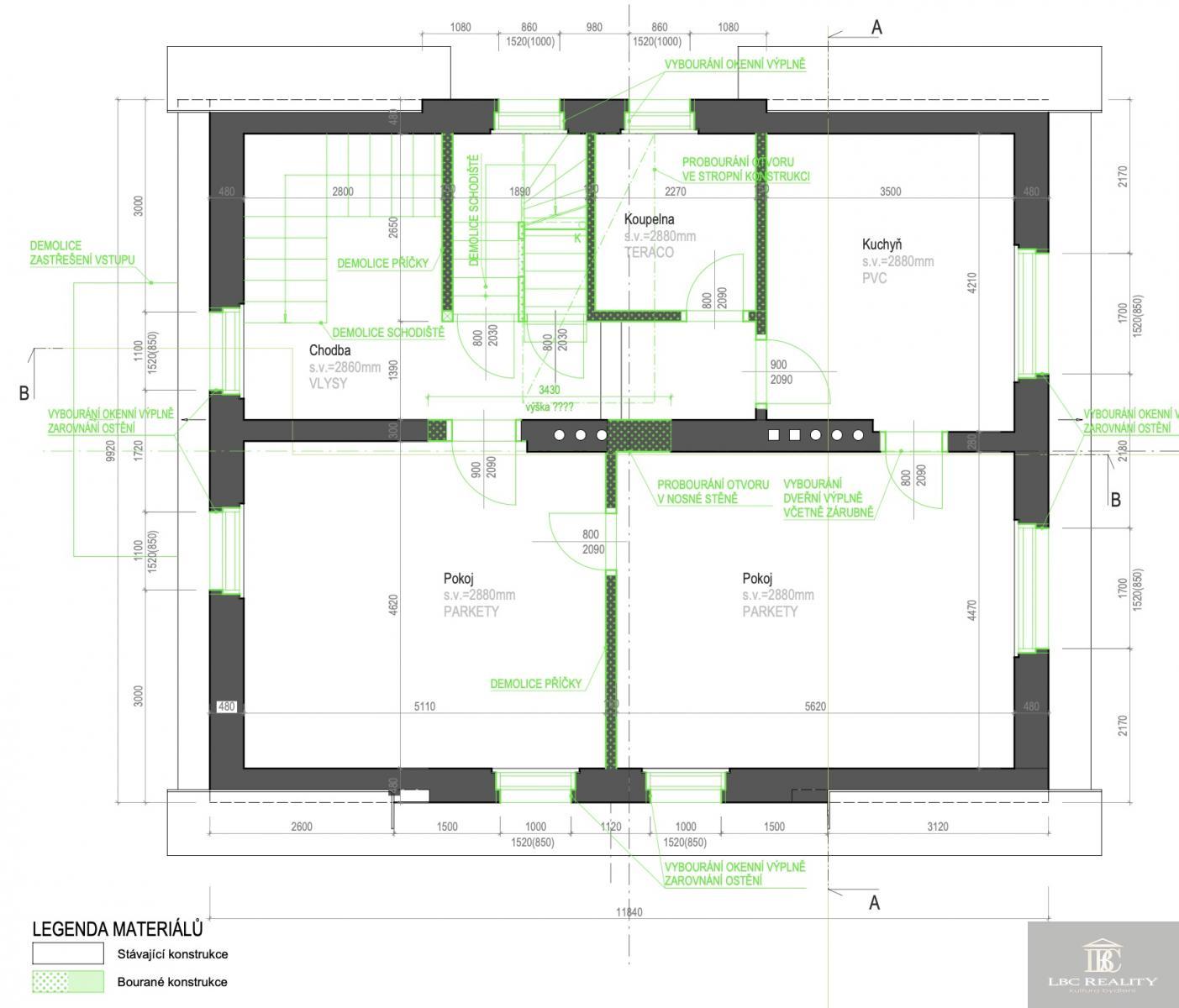
Vila k celkové rekonstrukci prestižní čtvrť Staré město- Liberec. Nabízíme jedinečnou příležitost k realizaci vlastního developerského nebo rodinného projektu v nejžádanější lokalitě Liberce směr Lidové sady. Tato vilová stavba z meziválečného období stojí na rozsáhlém pozemku a je připravena k celkové rekonstrukci objekt je zcela vyčištěn až na nosné zdivo (na cihlu) a připraven pro stavební zásah. Základní informace: Lokalita: Liberec Staré město ve směru Lidových sadů- nejprestižnější rezidenční oblast města Pozemek: velkorysý, spíše rovinatý, s dostatkem prostoru pro parkování i zeleň Stav objektu: kompletně vyčištěno na konstrukce, připraveno pro rekonstrukci Stavební povolení: vydáno na dvě mezonetové bytové jednotky (uvedená cena zahrnuje kompletní projekt předního liberecké architekta) Alternativně lze projekt upravit na čtyři samostatné bytové jednotky (po podlažích) Popis a potenciál Vila je ideální pro investory, kteří hledají projekt s duší a potenciálem návratnosti v prémiové části města. Nosné zdivo je v dobrém technickém stavu, dům je zbaven všech původních rozvodů a vnitřních příček připravený na novou dispozici podle moderních standardů. Lokalita umožňuje nízkopodlažní rezidenční zástavbu s vysokou společenskou prestiží. Staré město a Lidové sady patří mezi nejstarší a nejreprezentativnější vilové čtvrti Liberce. Vznikly na přelomu 19. a 20. století jako rezidenční oblast pro průmyslníky a měšťany, kteří zde stavěli své honosné vily s výhledem na Ještěd a do zeleně. Dnes tato čtvrť představuje harmonické spojení historie, přírody a kultury v bezprostřední blízkosti zoologické a botanické zahrady, parku i centra města. Tento objekt představuje mimořádnou investiční příležitost ať už chcete vytvořit luxusní dvougenerační bydlení, nebo menší bytový dům v prestižní čtvrti s vysokou poptávkou. Pokud máte zájem o více informací, případně nemovitost společně navštívit, kontaktujte mě a budu se na vás těšit na společné prohlídce. Veškeré zveřejněné údaje obsažené v tomto inzerátu mají pouze informativní charakter a nejsou nabídkou ve smyslu § 1731 nebo § 1732 občanského zákoníku, ani se nejedná o veřejný příslib dle § 1733 občanského zákoníku. <a href="https://www.eurobydleni.cz/domy/rodinny-dum/svitavy/obec-hradec-nad-svitavou/prodej/"><strong>Prodej rodinného domu Hradec nad Svitavou</strong></a>
Prodej, vila, pozemek 5870 m2, Turnov, ul. Křišťálová
Reprezentativní designová vila se stavebními pozemky o CP 5870 m2 - Turnov, ulice Křišťálová Rádi bychom Vám představili reprezentativní designovou…
REZERVOVÁNO / Prodej vily - Lázeňský vrch, Staré Splavy
REZERVOVÁNO / Prodej stylové vily s výhledem na Máchovo jezero ve Starých Splavech Nabízíme k prodeji výjimečnou vilu na nejvýše položeném pozemku…
Prodej vily Liberec na Eurobydleni.cz