Makléř: Toman Ladislav
Telefon: 721 704 ...
E-mail: info@li ...
Zobrazit celý kontaktTelefon: 721 704 721
E-mail: info@librea.cz
Nemovitost nabízí
LIBREA
Zeyerova 560/25, Liberec - Staré Město
Zobrazit kontakt na RK
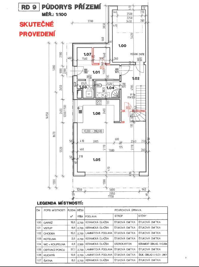
Exkluzivně nabízíme k prodeji nízkonákladový rodinný řadový dům v Liberci - Starých Pavlovicích. Dům má celkovou užitnou plochu 178m2 a nízké měsíční náklady. K domu náleží garáž (19 m2) přístupná z interiéru a zahrada o výměře 681 m2. Konstrukce ploché střechy umožňuje maximálně využít vnitřní prostor domu. Rodinný dům má dispozici 5+kk ve dvou nadzemních podlažích. Dolnímu podlaží dominuje velkorysý obývací pokoj s francouzskými okny a vstupem na terasu. Na obývací pokoj plynule navazuje kuchyňská linka s jídelním koutem, dále chodba, koupelna s WC, vnitřní šatna, technická místnost a vstup do garáže. V horním podlaží je ložnice, 2 dětské pokoje, pracovna, koupelna s vanou a samostatné WC. Z pracovny je vstup na horní terasu. Dům je tedy vhodný i pro početnou rodinu, kde si každý najde své vlastní místo. Vytápění domu a ohřev teplé vody je zajištěn tepelným čerpadlem země-voda, které umožňuje i budoucí využití pro chlazení objektu. Všechny místnosti vyjma garáže mají podlahové vytápění. Dispoziční řešení domu bylo upraveno na míru, aby poskytovalo komfort a soukromí každému z členů rodiny. K domu patří také velká terasa, zahradní pergola a kultivovaná zahrada oddělující okolní zástavbu vzrostlými dřevinami. Dům i zahrada tak poskytuje naprosté soukromí. Na pozemku je i vrtaná studna na užitkovou vodu. Prodejní cena je podložena znaleckým posudkem ze dne 16.08.2025. Vyjádření znalce je pro vás k dispozici pro případné financování hypotečním úvěrem. V případě financování úvěrem Vám poradí náš hypoteční specialista. Těším se na setkání s Vámi.
Prodej rodinného domu v Liberci ul. Východní, Vratislavice nad Nisou
Hledáte dokonalý rodinný dům v klidné části Liberce, konkrétně ve Vratislavicích nad Nisou? Nabízíme vám jedinečnou příležitost zakoupit nemovitost…
Prodej rodinného domu, 7+2, 180 m2, Liberec, ul. Švermova
Nabízíme ke koupi dvougenerační prvorepublikovou vilu v žádané lokalitě k.ú. Františkov - Liberec. V 1.NP byt o dispozici 3+1. Velká kuchyně s…
Prodej rodinného domu Liberec na Eurobydleni.cz