Makléř: Kaláb Jakub
Telefon: 725 807 ...
E-mail: jakub@k ...
Zobrazit celý kontaktTelefon: 725 807 555
E-mail: jakub@kalabreality.cz
Nemovitost nabízí
Hit Reality
Vranové 1.díl 252, Malá Skála
Zobrazit kontakt na RK
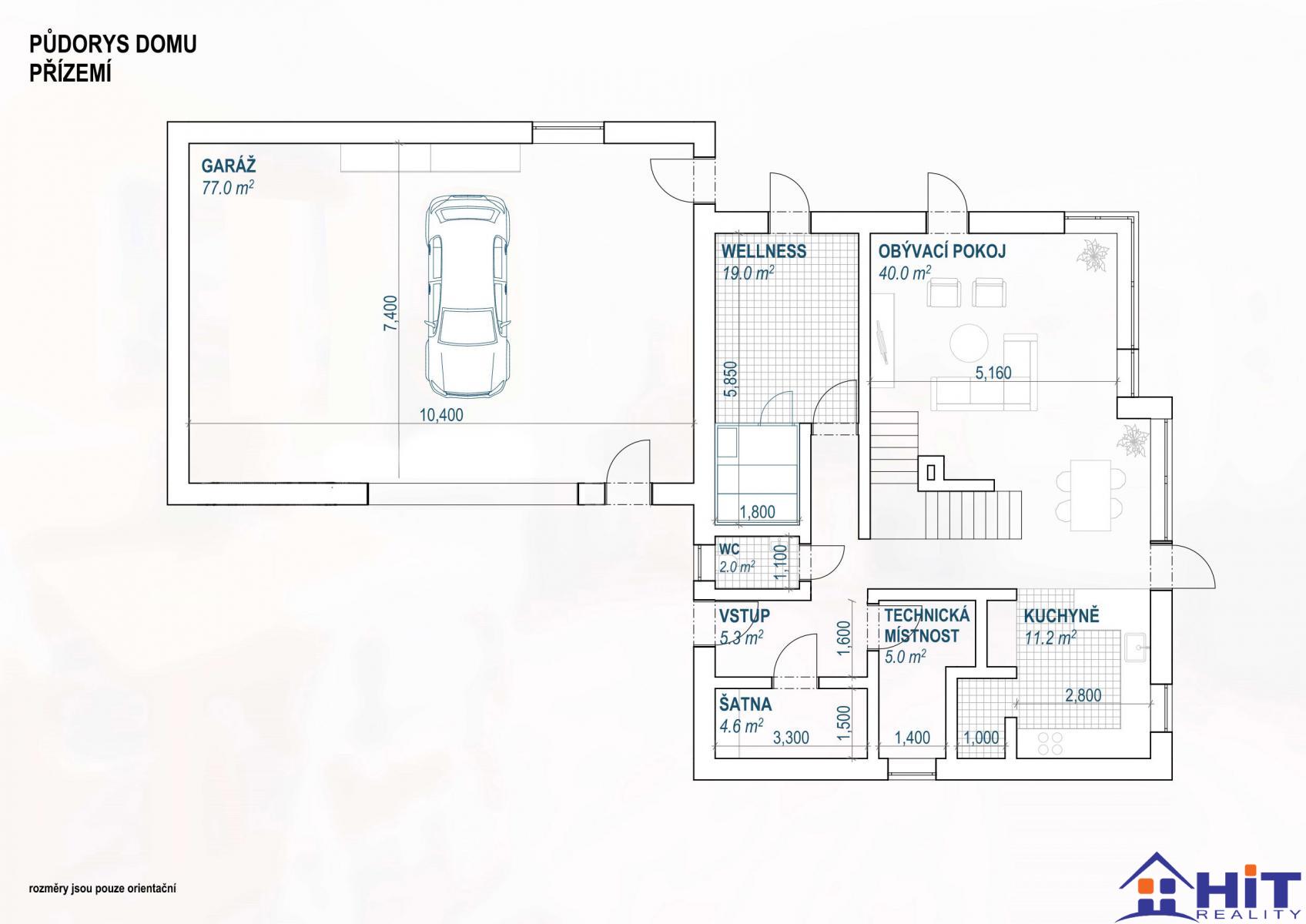
Nabízíme k prodeji moderní rodinný dům 6+kk o užitné ploše 231 m2, který se nachází v obci Sněhov, přibližně kilometr pěšky od Malé Skály, v srdci Českého ráje. Nemovitost je situována na konci slepé ulice, obklopená vlastní zahradou a navazujícím lesem, díky čemuž nabízí naprosté soukromí a krásné výhledy na Suché skály. Dům stojí na rozsáhlém pozemku o celkové výměře 5 528 m2, který tvoří funkční celek - 2 811 m2 zahrady a 2 510 m2 vlastního lesa, jenž zajišťuje ticho, soukromí a přímé propojení s přírodou. Zastavěná plocha činí 207 m2. Nemovitost byla zkolaudována v roce 2024 a po technické stránce odpovídá nárokům moderní novostavby. Dům je postaven z kvalitních materiálů (Ytong Lambda 450, betonové stropy, zateplení, kvalitní izolace) a navržen s důrazem na komfortní, úsporný a bezproblémový provoz. Okna i vstupní dveře jsou hliníková, s důrazem na dlouhou životnost a výborné tepelněizolační vlastnosti. V přízemí se nachází velkorysý obývací prostor propojený s jídelnou a moderní kuchyní ve tvaru U se spotřebiči Whirlpool a spíží. Součástí přízemí je také wellness zóna se saunou, vířivkou a sprchou s přímým vstupem na zahradu k přelivovému bazénu o rozměrech 3 × 6 m. Nechybí technická místnost a samostatná toaleta. V patře jsou situovány čtyři světlé ložnice, velká koupelna, další samostatná toaleta a úložné prostory. K dispozici je také pochozí půda vhodná k ukládání sezónních věcí. Vytápění domu je řešeno podlahovým topením v celém objektu, doplněným krbem. Ohřev vody zajišťuje tepelné čerpadlo zeměvoda s kolektory. Nemovitost disponuje elektro přípojkou 32A, septikem, vrtanou studnou o hloubce 100 m (na pozemku je rovněž obecní vodovod), plastovými rozvody a kvalitními vnitřními povrchy. Komfort bydlení zvyšují venkovní žaluzie ovládané pomocí aplikace. Měsíční náklady na provoz domu se pohybují přibližně mezi 2 500 - 3 000 Kč. Významným benefitem je mimořádně prostorná garáž o výměře cca 80 m2, která nabízí parkování pro více vozidel, prostor pro dílnu nebo hobby zázemí. Světlá výška garáže činí 3 metry, výška vrat 2,5 metru. Podlaha je opatřena epoxidovým nátěrem. Na pozemku se dále nachází zahradní domek a venkovní posezení, které je částečně kryté samotným domem. Zároveň je zde příprava na kompletní zastřešení celé terasy, pokud by si budoucí majitel přál posezení plně uzavřít. Současní majitelé nemovitost dále nadstandardně doplnili o nové prvky, mezi které patří venkovní osvětlení, instalace čtyř kamerových bodů a příprava chytrých zásuvek. Veškeré tyto systémy jsou navrženy tak, aby byly ovladatelné z jedné centrální aplikace, což dále zvyšuje komfort i bezpečnost bydlení. Zároveň se dokončují sokly domu finálním nátěrem. Lokalita Sněhov patří k nejvyhledávanějším v Českém ráji. V bezprostřední blízkosti se nachází Malá Skála, řeka Jizera, Pantheon, cyklostezky i turistické trasy. V zimních měsících nabízí okolí ideální podmínky pro běžky i lyžování. Praha je vzdálena přibližně hodinu jízdy, Liberec 25 minut a Harrachov 45 minut. Tento dům představuje výjimečnou kombinaci moderního zázemí, špičkových technologií, soukromí a mimořádně velkého pozemku v jedné z nejkrásnějších lokalit Česka. Pro více informací nebo sjednání osobní prohlídky nás neváhejte kontaktovat. K nastěhování dle dohody. <a href="https://www.eurobydleni.cz/pozemky/stavebni-pozemek-bydleni/benesov/obec-stranny/prodej/"><strong>Prodej stavebního pozemku Stranný</strong></a>
Prodej, pozemek se stavebním povolením, Malá Skála
Nabízíme k prodeji stavební parcelu v lukrativní části Malé Skály se stavebním povolením a projektem moderního rodinného domu. Nízkoenergetický…
Prodej rodinného domu, 260 m2, Malá Skála
Nabízíme k prodeji rodinný dům 5+kk v klidné části obce Malá Skála, Mukařov. V místě s krásným výhledem do krajiny Českého ráje, Jizerských hor i…
Prodej rodinného domu Malá Skála na Eurobydleni.cz