Aktuálně můžete v lokalitě Liberec vybírat z nabídky 52 domů.
Přehled nemovitostí: prodej domy > činžovní domy Zpět na přehled nabídek

Prodej, Činžovní dům, Nový Bor

neuvedeno

507 m2

G - Mimořádně nehospodárná

0213

20.11.2025

Cena: 17900000 CZK / objekt

Poslat dotaz k nabídce
Zásady používání osobních údajů

Prodejce

Makléř: Michal Řehoř

Telefon: 734 699 ...

E-mail: michal@ ...

Zobrazit celý kontakt

Nemovitost nabízí

Reality Řehoř

Pražská 147/30, Liberec

www.reality-rehor.cz

Zobrazit kontakt na RK

Zobrazit všechny nabídky RK

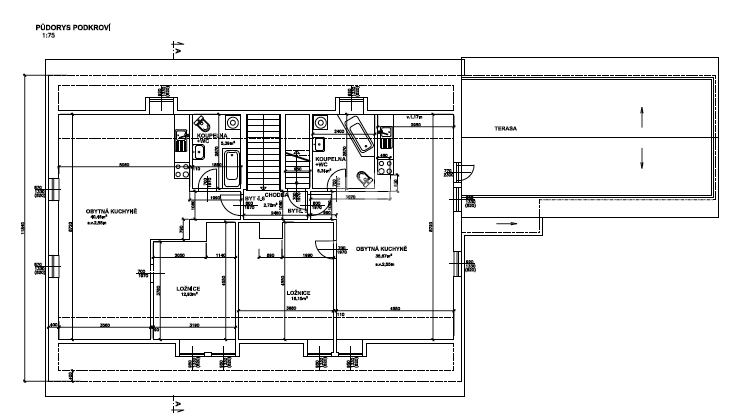
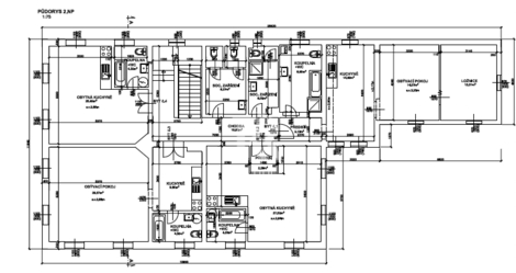
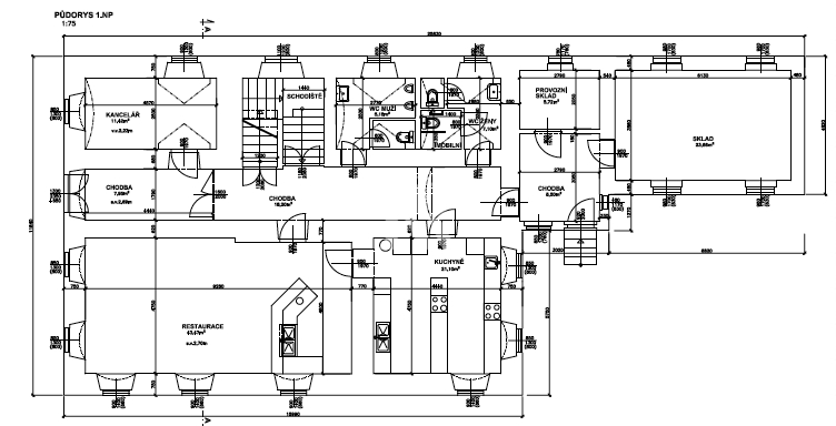
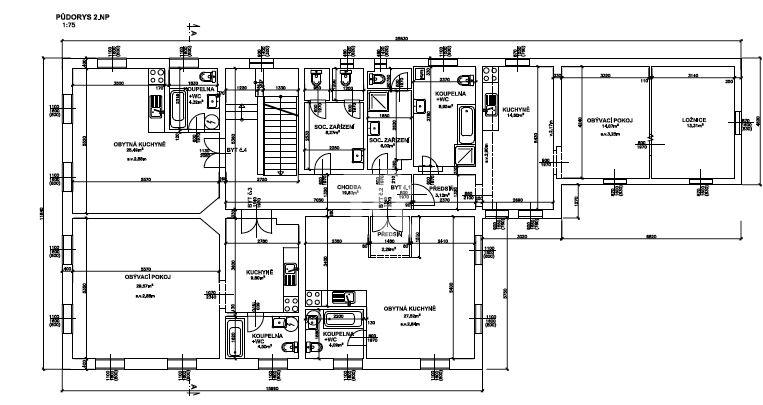
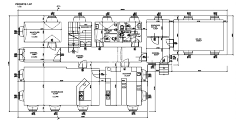
Nabízím zprostředkování prodeje multifunkčního domu v Novém Boru a to přímo v centru města - náměstí Míru. Jedná se o samostatně stojící budovu, ve velmi dobrém technickém stavu. Při nedávné rekonstrukci došlo k zateplení pláště, výměně některých dřevěných prvků. Nová je elektroinstalace, rozvody vody i plynu. Dům se skládá z třech nadzemních podlaží a to v následujících dispozicích: 1.NP: restaurace s kuchyní a sociálním zařízením, sklad, 2x kancelář 2.NP: bytové jednotky 2+1, 1+KK, 1+1 a 1+KK 3.NP: bytové jednotky 2+KK s terasou, 2+KK Celý dům je podsklepený, klenby suterénu jsou z pískovcových štuků. Zastavěná plocha činí 234m2. Na přilehlém vlastním pozemku jsou 2 garáže o celkové výměře 54m2. Z větší části je vytápění řešeno plynem, některé byty mají elektrické topení. Dům je napojený na veřejný vodovod a kanalizaci. Aktuálně jsou všechny bytové jednotky pronajaté bezproblémovým, platícím nájemníkům. V rámci klientského servisu se vám postaráme zdarma o případné naplnění kapacity. Zavedená restaurace s kapacitou 30 míst je zcela vybavena a v nejbližších dnech bude otevřena novým nájemcem. Venkovní markýza s posezením v letních měsících téměř zdvojnásobuje kapacitu a je vyhledávaná turisty i lidmi pracujícími v okolních firmách a městském úřadu. Jedná se o velmi zajímavou investiční nemovitost . Kontaktujte našeho makléře a domluvte si termín prohlídky.



Nahoru