Makléř: Kaláb Jakub
Telefon: 725 469 ...
E-mail: jakub@k ...
Zobrazit celý kontaktTelefon: 725 469 110
E-mail: jakub@kalabreality.cz
Nemovitost nabízí
Hit Reality
Vranové 1.díl 252, Malá Skála
Zobrazit kontakt na RK
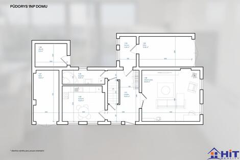
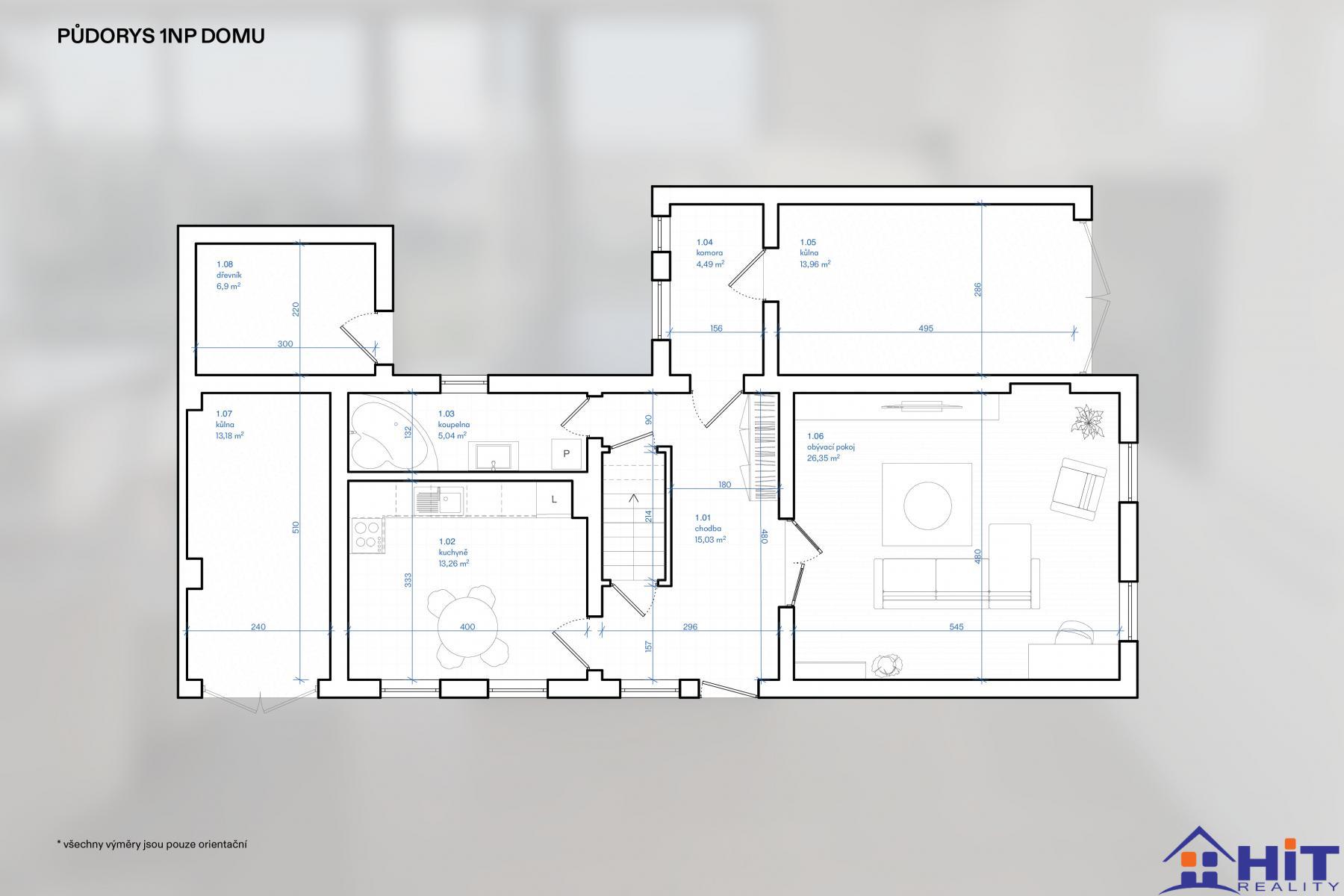
Pod Ještědem, jen deset minut od Liberce a necelou hodinu od Prahy, stojí dům, který spojuje kouzlo přírody s pohodlím moderního bydlení. Poloha má obrovský potenciál, doslova za zahradní brankou najdete koupaliště, v okolí lesy, golfové hřiště a v zimě i sjezdovky. A přesto zůstáváte v perfektním dosahu města. U domu můžete proměnit vše: interiér, zahradu i fasádu. Jediné, co se nikdy nemění, je lokalita. A tahle je ta pravá. Rodinný dům o dispozici 3+1 (s možností rozšíření na 4+1) z třicátých let prošel v posledních letech kompletní rekonstrukcí. Důraz na kvalitu je vidět na každém detailu, masivní kuchyň, dřevěné dveře, vestavěné skříně i nábytek. Celková užitná plocha 194 m2 zahrnuje také technické místnosti, sklep (10 m2) a garáž, která dnes slouží především jako praktický úložný prostor pro vybavení domu a zahrady. Obytná část nabízí prostorný obývací pokoj s krbovými kamny, kuchyni s jídelním koutem, koupelnu s podlahovým vytápěním a dvě velké ložnice v podkroví. Pozemek o rozloze 587 m2 je koncipován tak, aby poskytoval dostatek soukromí i funkčního zázemí. Okolo domu se rozprostírá udržovaná zahrada, která plynule navazuje na okolní zeleň. Díky jižní orientaci je interiér vždy světlý a slunný. Technické zázemí odpovídá současným standardům. O vytápění se stará tepelné čerpadlo LG o výkonu 13,5 kW, doplněné krbovými kamny a elektrickým podlahovým topením v koupelně. Alternativně lze využít i elektrokotel. Odpadní vody jsou řešeny jímkou s trativodem, teplou vodu zajišťuje bojler o objemu 200 litrů. Dům je napojen na veřejný vodovod a elektřinu 230/400 V, internet je stabilní. Střecha je sedlová, krytá bonským šindelem s měděnými oplechováními, okna jsou dřevěná s dvojskly, v podkroví střešní okna Velux. Světlá pod Ještědem, Hoření Paseky je místo, které spojuje krásnou přírodní kulisu s praktickou občanskou vybaveností. V docházkové vzdálenosti najdete mateřskou i základní školu (do 1,8 km), poštu (1,7 km), večerku (1,4 km), hospodu a restauraci (1,6 až 1,7 km), dětské hřiště (1,7 km), sportoviště hned za domem (98 m) a autobusovou zastávku MHD pouhých 187 m od domu. V širším dosahu jsou pak tramvajová zastávka (3,5 km), vlakové nádraží (4,5 km) a lékárna (4,6 km). Okolí nabízí nepřeberné množství možností, jak aktivně trávit volný čas. Od procházek v lesích, přes koupání hned za zahradou až po golf a zimní lyžování. Ať už hledáte klidný domov, víkendové útočiště nebo kombinaci obojího, tahle nemovitost vám dá jistotu, že jste si vybrali správnou adresu. <a href="https://www.eurobydleni.cz/domy/rodinny-dum/liberec/obec-svetla-pod-jestedem/prodej/"><strong>Prodej rodinného domu Světlá pod Ještědem</strong></a>
Prodej útulné chaty se zahradou v klidné části Liberec Karlinky
Exkluzivně nabízíme k prodeji útulnou chatu o velikosti 38 m2 s prostornou terasou a balkonem, která se nachází na udržovaném stavebním pozemku o…
Prodej roubené chalupy 4+kk, Hodkovice nad Mohelkou, okr. Liberec
Toužíte po klidném útočišti s historickou atmosférou a přitom s vynikající dostupností do Jizerských hor, Krkonoš a Prahy? Ve výhradním zastoupení…
Prodej chalupy Světlá pod Ještědem na Eurobydleni.cz