Makléř: Kaláb Jakub
Telefon: 725 807 ...
E-mail: jakub@k ...
Zobrazit celý kontaktTelefon: 725 807 555
E-mail: jakub@kalabreality.cz
Nemovitost nabízí
Hit Reality
Vranové 1.díl 252, Malá Skála
Zobrazit kontakt na RK
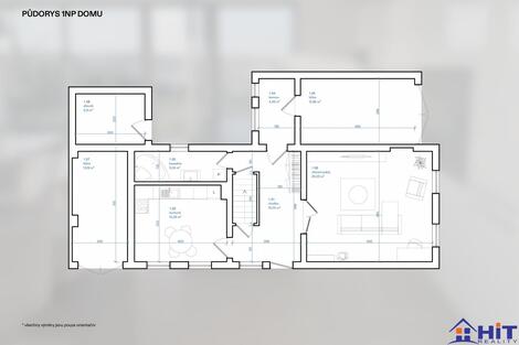
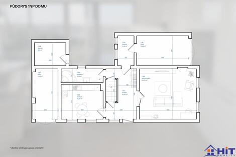
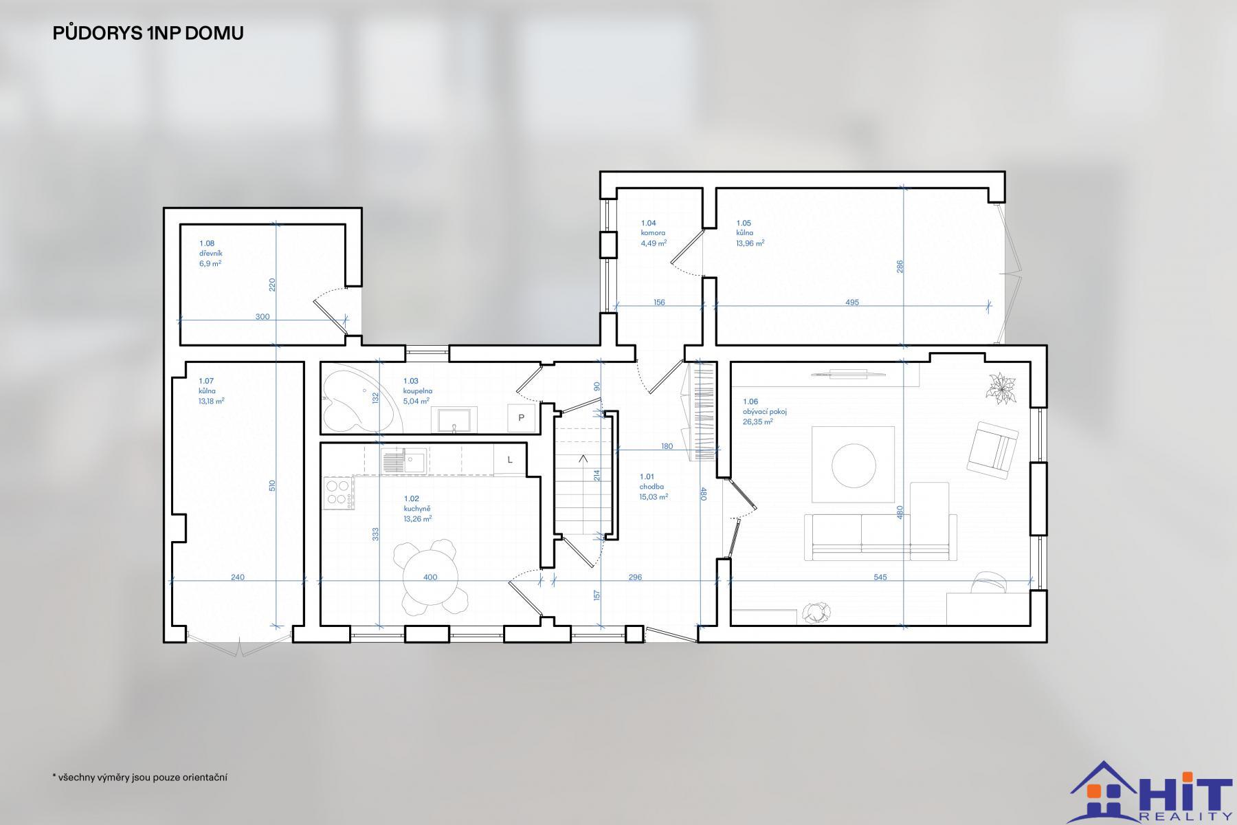
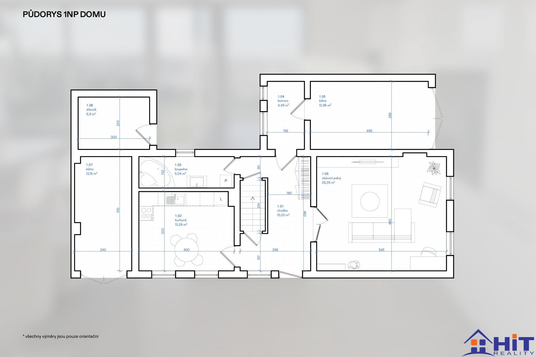
Pod Ještědem, jen deset minut od Liberce a necelou hodinu od Prahy, stojí dům, který spojuje kouzlo přírody s pohodlím moderního bydlení. Poloha má obrovský potenciál, doslova za zahradní brankou najdete koupaliště, v okolí lesy, golfové hřiště a v zimě i sjezdovky. A přesto zůstáváte v perfektním dosahu města. U domu můžete proměnit vše: interiér, zahradu i fasádu. Jediné, co se nikdy nemění, je lokalita. A tahle je ta pravá. Rodinný dům o dispozici 3+1 (s možností rozšíření na 4+1) z třicátých let prošel v posledních letech kompletní rekonstrukcí. Důraz na kvalitu je vidět na každém detailu, masivní kuchyň, dřevěné dveře, vestavěné skříně i nábytek. Celková užitná plocha 194 m2 zahrnuje také technické místnosti, sklep (10 m2) a garáž, která dnes slouží především jako praktický úložný prostor pro vybavení domu a zahrady. Obytná část nabízí prostorný obývací pokoj s krbovými kamny, kuchyni s jídelním koutem, koupelnu s podlahovým vytápěním a dvě velké ložnice v podkroví. Pozemek o rozloze 587 m2 je koncipován tak, aby poskytoval dostatek soukromí i funkčního zázemí. Okolo domu se rozprostírá udržovaná zahrada, která plynule navazuje na okolní zeleň. Díky jižní orientaci je interiér vždy světlý a slunný. Velkou výhodou je, že na plnou výši kupní ceny již vyšel bankovní odhad, takže v případě financování hypotečním úvěrem nevzniká riziko podhodnocení zástavy ani nutnosti doplácet vlastní prostředky nad rámec plánovaného financování. Technické zázemí odpovídá současným standardům. O vytápění se stará tepelné čerpadlo LG o výkonu 13,5 kW, doplněné krbovými kamny a elektrickým podlahovým topením v koupelně. Alternativně lze využít i elektrokotel. Odpadní vody jsou řešeny jímkou s trativodem, teplou vodu zajišťuje bojler o objemu 200 litrů. Dům je napojen na veřejný vodovod a elektřinu 230/400 V, internet je stabilní. Střecha je sedlová, krytá bonským šindelem s měděnými oplechováními, okna jsou dřevěná s dvojskly, v podkroví střešní okna Velux. Světlá pod Ještědem, Hoření Paseky je místo, které spojuje krásnou přírodní kulisu s praktickou občanskou vybaveností. V docházkové vzdálenosti najdete mateřskou i základní školu (do 1,8 km), poštu (1,7 km), večerku (1,4 km), hospodu a restauraci (1,6 až 1,7 km), dětské hřiště (1,7 km), sportoviště hned za domem (98 m) a autobusovou zastávku MHD pouhých 187 m od domu. V širším dosahu jsou pak tramvajová zastávka (3,5 km), vlakové nádraží (4,5 km) a lékárna (4,6 km). Okolí nabízí nepřeberné množství možností, jak aktivně trávit volný čas. Od procházek v lesích, přes koupání hned za zahradou až po golf a zimní lyžování. Ať už hledáte klidný domov, víkendové útočiště nebo kombinaci obojího, tahle nemovitost vám dá jistotu, že jste si vybrali správnou adresu. <a href="https://www.eurobydleni.cz/komercni-nemovitosti/administrativni-budovy/pardubice/obec-pardubice/prodej/"><strong>Prodej administrativní budova Pardubice</strong></a>
Prodej, Rodinný dům, Světlá pod Ještědem
V zastoupení majitele si Vám dovoluji nabídnou ke koupi chalupu na Pláních pod Ještědem, cca 700 m. n.m., na úžasném místě, poblíž Restaurace na…
Prodej rodinného domu Světlá pod Ještědem na Eurobydleni.cz