Prodej řadové novostavby, 120 m2, Liberec, ul. Bajkalská
242 m2
120 m2
osobní
B - Velmi úsporná
921831
Makléř: Dörfl Michal
Telefon: 800 100 ...
E-mail: info@mm ...
Zobrazit celý kontaktTelefon: 800 100 446
E-mail: info@mmreality.cz
Nemovitost nabízí
M&M reality holding a.s.
Krakovská 1675/2, 110 00 Praha 1
Zobrazit kontakt na RK800 100 446
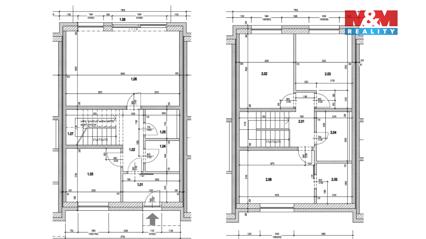
Nabízíme k prodeji moderní novostavbu řadového domu v klidné části Liberce, ul. Bajkalská, katastrální území Janův Důl. Tato nízkoenergetická nemovitost s dispozicí 4+kk a užitnou plochou 120 m2 se rozprostírá ve dvou nadzemních podlažích. Dům je součástí uzavřeného rezortu pěti řadových domů, kde je kladen důraz na použití moderních materiálů. Výhodou je vytápění tepelným čerpadlem a horkovodní podlahové vytápění, trojskla v oknech a příprava na krbovou vložku. V ceně jsou zahrnuty dvě parkovací stání. Plocha pozemku činí 242 m2. Nabízíme možnost dokončení na klíč dle individuálních přání, včetně změn dispozice. Zahájení výstavby je plánováno na březen 2026, dokončení na květen 2027. Pro více informací kontaktujte makléře.
Prodej rodinného domu 160 m, Liberec XVI-Nový Harcov
Rodinný dům v Harcově pozemek 2.563 m, dům ke kompletní rekonstrukci nebo možnost novostavby. Lokalita, která má hodnotu Hledáte místo v přírodě,…
Prodej, domy/rodinný, 222 m2, K Bedřichovce 71, 46001 Liberec, Liberec [ID 74283]
Vícegenerační dům 8+2 se zahradou a potokem | Machnín u Liberce Hledáte dům s duší, kde spojíte bydlení, přírodu i investiční potenciál? Pak vás…