Aktuálně můžete v lokalitě Liberec vybírat z nabídky 50 domů.
Přehled nemovitostí: prodej domy > rodinné domy Zpět na přehled nabídek

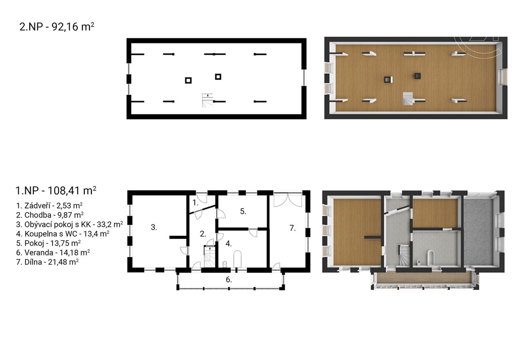
Prodej rodinného domu, 165 m2, k rekonstrukci, se schváleným stavebním projektem v Bratříkově, Pěnčín

1 009 m2

165 m2

osobní

G - Mimořádně nehospodárná

965087

10.12.2025

Cena: 1800000 CZK / objekt
Poznámka k ceně: Cena zahrnuje i projekt na rekonstrukci rodinného domu. 1

Poslat dotaz k nabídce
Zásady používání osobních údajů

Prodejce

Makléř: Řehák Vladimír

Telefon: 420 226 ...

E-mail: synergy ...

Zobrazit celý kontakt

Nemovitost nabízí

Century 21 Synergy

Ke Štvanici 656/3, 180 00 Praha 8 - Karlín

Zobrazit kontakt na RK

Zobrazit všechny nabídky RK

Tento dům a nového majitele čeká rekonstrukce. Pro pohodlný průběh nechal současný majitel vytvořit kompletní projekt, který počítá s exteriérovými a interiérovými úpravami domu. V rámci obálky domu zateplení, novou střechu, ale i přesunutí vstupu do domu, aby bylo vše pohodlné a odpovídalo moderním standardům bydlení. Přibylo parkovací stání a je počítáno s vybudování čističky odpadních vod, stejně tak i tepelného čerpadla. Interiér je vyprojektován pro pohodlné bydlení čtyřčlenné rodiny. Dá se říci, že nezůstal kámen na kameni a mění se tak dispozice jak prvního, tak i druhého nadzemního podlaží. V projektu je kladen důraz na klidovou část domu orientovanou v druhém nadzemním podlaží a společný prostor v přízemí. K tomu slouží i propojení jídelny s kuchyňskou linkou se zamýšleným výhledem do zeleně a zbylo místo i na společenskou místnost. Pokud nový majitel dodrží navrhovaný postup a technologie, je energetická náročnost budovy vypočítána na druhou nejlepší třídu, tedy B. Statika objektu bez závažných vad. Zahrada náležící k domu má přes tisíc metrů a díky svažitému profilu terénu, lze vybudovat moderní kaskádové terasy. Noví majitelé mají možnost čerpat z dotačních programů na rekonstrukci nemovitosti. Schválený projekt je součástí prodeje tohoto domu. Rád jej poskytnu na prohlídce tohoto domu, kde zároveň vyřešíme detaily financování a projdeme veškeré náležitosti a možnosti této nemovitosti. Těším se na viděnou, Vladimír Řehák.



Nahoru