Aktuálně můžete v lokalitě Liberec vybírat z nabídky 51 domů.
Přehled nemovitostí: prodej domy > vily Zpět na přehled nabídek

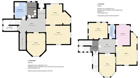
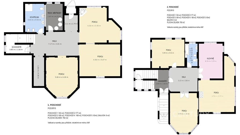
Prodej unikátní vily, 760 m2 Nový Bor Arnultovice

3 490 m2

760 m2

osobní

G - Mimořádně nehospodárná

926045

30.11.2025

Cena: 19900000 CZK / objekt

Poslat dotaz k nabídce
Zásady používání osobních údajů

Prodejce

Makléř: Ing. Hruška Jiří

Telefon: 420 602 ...

E-mail: jiri.hr ...

Zobrazit celý kontakt

Nemovitost nabízí

CENTURY 21 OK Centrum

U Zvonařky 1413/13, 120 00 Praha 2

www.century21.cz/kancelar-ok-centrum

Zobrazit kontakt na RK

Zobrazit všechny nabídky RK

Exkluzivně nabízíme jedinečnou příležitost stát se majitelem impozantní vily v ArnultovicíchNovém Boru. Tato pozoruhodná historická secesní stavba o rozloze 760 m2, s pěti poschodími a pozemkem o velikosti 3490 m2, nabízí šanci spojit moderní pohodlí s historickým šarmem. Interiér vily: přízemí: hala, koupelna, technická místnost, a celkem 3 pokoje, z nichž jeden se pyšní velkým krbem; první poschodí: z haly vstoupíte do 2 pokojů, koupelny a kuchyně spojené s dalším pokojem, který disponuje dalšími kachlovými kamny; druhé poschodí: 3 pokoje, z toho 2 s kachlovými kamny, koupelna, kuchyně a balkon; třetí poschodí: 3 pokoje, koupelna, kuchyně; čtvrté poschodí: 3 pokoje, koupelna, kuchyně, s přístupem do podkroví s věžičkou. Exteriér vily je stejně působivý jako jeho interiér. S pozemkem o velikosti 3490 m2 se vzrostlými stromy a s velkým dlážděným prostorem pro pohodlné parkování vozidel je zde dokonalá rovnováha mezi bydlením a přírodou. Pozemek je vyjma vzrostlých stromů bez dalšího zásahu, nabízí tedy možnost si vytvořit zahradu podle vlastních představ. V blízkosti je veškerá občanská vybavenost. Jedná se o krásnou lokalitu obklopenou přírodními památkami s velkým množstvím turistických stezek. Pokud máte zájem o prohlídku nebo další informace, neváhejte nás kontaktovat.



Nahoru