Makléř: Ing. Hruška Jiří
Telefon: 420 602 ...
E-mail: jiri.hr ...
Zobrazit celý kontaktTelefon: 420 602 439 243
E-mail: jiri.hruska@century21.cz
Nemovitost nabízí
CENTURY 21 OK Centrum
U Zvonařky 1413/13, 120 00 Praha 2
www.century21.cz/kancelar-ok-centrum
Zobrazit kontakt na RK
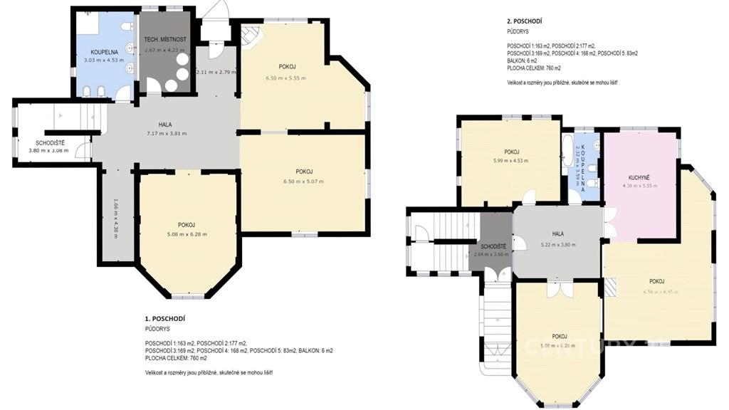
Exkluzivně nabízíme jedinečnou příležitost stát se majitelem impozantní vily v ArnultovicíchNovém Boru. Tato pozoruhodná historická secesní stavba o rozloze 760 m2, s pěti poschodími a pozemkem o velikosti 3490 m2, nabízí šanci spojit moderní pohodlí s historickým šarmem. Interiér vily: přízemí: hala, koupelna, technická místnost, a celkem 3 pokoje, z nichž jeden se pyšní velkým krbem; první poschodí: z haly vstoupíte do 2 pokojů, koupelny a kuchyně spojené s dalším pokojem, který disponuje dalšími kachlovými kamny; druhé poschodí: 3 pokoje, z toho 2 s kachlovými kamny, koupelna, kuchyně a balkon; třetí poschodí: 3 pokoje, koupelna, kuchyně; čtvrté poschodí: 3 pokoje, koupelna, kuchyně, s přístupem do podkroví s věžičkou. Exteriér vily je stejně působivý jako jeho interiér. S pozemkem o velikosti 3490 m2 se vzrostlými stromy a s velkým dlážděným prostorem pro pohodlné parkování vozidel je zde dokonalá rovnováha mezi bydlením a přírodou. Pozemek je vyjma vzrostlých stromů bez dalšího zásahu, nabízí tedy možnost si vytvořit zahradu podle vlastních představ. V blízkosti je veškerá občanská vybavenost. Jedná se o krásnou lokalitu obklopenou přírodními památkami s velkým množstvím turistických stezek. Pokud máte zájem o prohlídku nebo další informace, neváhejte nás kontaktovat.
Vila 440 m2 v České Lípě, pozemek 1145 m2, na Slovance
Nabízíme k prodeji čtyřpodlažní vilu s garážemi ve vyhledávané lokalitě městské části Slovanka. Dům je rozdělen na tři bytové jednotky 3+1 a sklep…
REZERVOVÁNO / Prodej vily - Lázeňský vrch, Staré Splavy
REZERVOVÁNO / Prodej stylové vily s výhledem na Máchovo jezero ve Starých Splavech Nabízíme k prodeji výjimečnou vilu na nejvýše položeném pozemku…